Marble Arch, Golden George Nagar, Chennai.

Building View


Availability / Cost


Project : Marble Arch
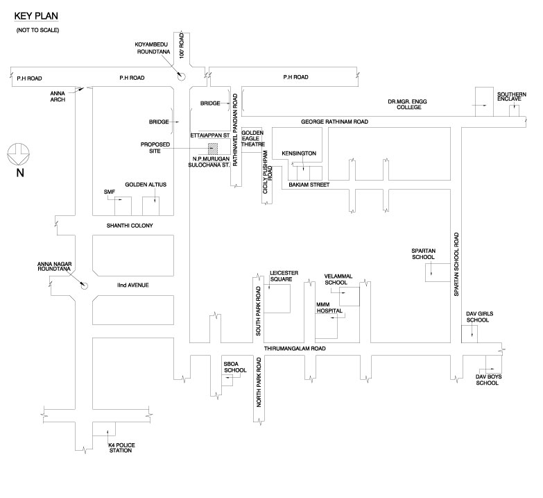
Address : Plot No. 105 & 106, N.P. Murugan Sulochana Street, Golden George Nagar,Chennai - 600 107, India .
No. of Floors : Ground + 1, No. of Flats : 6, Date of Completion : June 2008.
Availability / Cost of Flats

BLOCK 1:

S.No: Project Floor-Flat Area in Sq. Ft Rate per Sq. Ft Date Of Completion Total Cost.
1: Plot No : 105 & 106, N P Murugan Sulochana Street, Golden George Nagar, Chennai - 600 107. Ground-A SOLD 1285 4600 Dec 08 59,11,000
Covered Car parking 2,50,000
Registration(Provisional) 2,38,326
Deposits (EB, Metro, etc.,) 30,000
Total 64,29,326
2: First Floor-B SOLD 999 4600 Dec 08 45,95,400
Covered Car parking 2,50,000
Registration (Provisional) 1,47,603
Deposits (EB, Metro, etc.,) 30,000
Total 50,23,003
3: First Floor-C SOLD 983 4600 Dec 08 45,21,800
Covered Car parking 2,50,000
Registration (Provisional) 1,45,399
Deposits (EB, Metro, etc.,) 30,000
Total 49,47,199

BLOCK 2:

S.No: Project Floor-Flat Area in Sq. Ft. Rate per Sq. Ft. Date Of Completion. Total Cost.
1: Plot No : 105 & 106, N P Murugan Sulochana Street, Golden George Nagar, Chennai - 600 107. Ground-A SOLD 1285 4600 Dec 08 59,11,000
Covered Car parking 2,50,000
Registration(Provisional) 2,38,326
Deposits (EB, Metro, etc.,) 30,000
Total 64,29,326
2: First Floor-B SOLD 999 4600 Dec 08 45,95,400
Covered Car parking 2,50,000
Registration (Provisional) 1,47,603
Deposits (EB, Metro, etc.,) 30,000
Total 50,23,003
3: First Floor-C SOLD 983 4600 Dec 08 45,21,800
Covered Car parking 2,50,000
Registration (Provisional) 1,45,399
Deposits (EB, Metro, etc.,) 30,000
Total 49,47,199

Payment Terms::

Rs 1 Lakh for Booking, 15% On Signing, 45% in 30 days, Balance in 5 equated monthly instalments

Location

Typical Floor Plan (I & II)


View Full Floor Plan>>

Building Specifications


STRUCTURE :

  • RCC Framed structure with brick masonry.
  • Walls plastered smooth and painted with cement paint.

FLOORING :

  • 16"X16" Ceramic tiles plain series.

JOINERY :

  • Entry Door
    Varnished Panel Door made of Teak Wood.
  • Internal Doors
    Teak Wood Framed shutters with Plywood Panel.
  • Windows
    Teak Wood Frames and Glazed Shutters.

KITCHEN :

  • Polished Granite kitchen bench with stainless steel sink (18" x 36") .
  • Glazed tile skirting 2' high above bench area.

BEDROOM :

  • Provision to fix Air-conditioner, Television and Telephone points.
  • Niche for wardrobes and loft if required.

BATHROOMS :

  • Ceramic skirting 7 feet high on walls (8" x 6" plain series), Parry or Neycer Sanitary ware (regular range).
  • Heavy duty PVC pipes where required, power points for Geyser, Hot / Cold, plumbing.
  • 20"x16" bracket mounted wash basin (ordinary range) without pedestal.
  • 28" x 8" Anti Skid Flooring.

GENERAL :

  • Underground water sump.
  • Common overhead tank.
  • Wel.l
  • Bore wellL.
  • Compound walls with appropriate gates.
  • Common pumps and lighting where required.
  • Water treatment Plant.
  • Piped cooking gas (Rs. 18,000/- extra).
  • Independent Sump and Overhead Tank.
  • Power backup.